我们来探讨一下“XIY品牌集合店”和“F.O.G.建筑”这两个概念。
它们之间可能存在几种关系,或者可以分别理解:
1. "XIY品牌集合店 (XIY Brand Collective Store):"
"定义:" 这通常指的是一个商业模式,即在一个物理空间或一个线上平台内,集合了多个不同的、独立的品牌或设计师品牌,共同在一个空间内展示和销售商品。
"特点:" 提供多样化的商品选择,满足消费者一站式购物的需求;常常带有体验式消费的元素;可以快速引入新品牌或小众品牌;有助于品牌之间相互借力,扩大影响力。
"例子:" 类似于国内的“寺库”(Shitu库)、“集合店”等概念,或者国际上的“Concept Store”模式。
2. "F.O.G.建筑 (F.O.G. Architecture):"
"定义:" 这听起来像一个具体的建筑设计事务所、建筑项目名称,或者是一个特定的建筑风格/理论代号。
"含义:"
"F.O.G." 可能是 "First of its Kind" (首开先河), "Future Orientation Group" (未来导向小组), "Functionality & Geometry" (功能与几何), 或者其他特定名称的缩写。
"建筑 (Architecture):" 指的是与空间设计、结构、美学、
相关内容:
「XIY品牌集合店位于重庆北城天街购物中心,项目场地在过去二十年间被反复修改,外立面与内部结构十分杂乱。在立面设计上,本项目采用特别的“格式化”处理,将原本零散的“门面”整合为一个完整的建筑体量,使得项目从缭乱的城市环境中跳脱出来。在内部空间上,与其弱化或移除繁冗的梁柱结构,本设计反而将“杂乱”的既有建筑结构放大并加以利用,在视觉层面和体感层面营造一种近乎压迫的“超尺度感”。」
▽外立面


▽外立面

▽楼梯入口


▽营造一种近乎压迫的“超尺度感”

▽室内入口


图书馆式陈列
在XIY品牌集合店的设计采用了“服装图书馆”的设计理念,按照服装类型组织空间:例如,将风衣、长裙这些需要较多空间的“大书”挂在立柜中;基础款服饰和裤子这些“报刊”类物品放在格子展柜中;羊绒衫、毛衣、鞋和包这些“精装书”则平放在展台上;而首饰等“珍藏口袋书”放置在玻璃斗柜中。所有商品还会根据适用季节和场合,被细致地归类到不同的“科目”区域中。
▽图书馆式陈列

▽采用了“服装图书馆”的设计理念


▽大衣这些需要较多空间的“大书”挂在立柜中

▽鞋和包这些“精装书”则平放在展台上

▽按照服装类型组织空间


▽按照服装类型组织空间

▽陈列空间


室内结构
除了立面系统,建筑结构也十分混乱,大致可以提炼为:以梁为线段、柱为格点的网格状场地。我们对此进行了略带反讽意味的“格式化”改造:与其弱化或移除繁冗的梁柱结构,反而将其放大并加以利用,在视觉层面和体感层面营造一种近乎压迫的“超尺度感”。被保留下来的建筑结构遗迹形成庄严肃穆的圆柱阵列,重新梳理过的数个单元格分区由可移动道具串联起来,结合固定的空间元素,可以自由组合成多功能使用场景。
▽室内结构



▽以梁为线段、柱为格点的网格状场地



▽营造一种近乎压迫的“超尺度感”


▽庄严肃穆的圆柱阵列


▽庄严肃穆的圆柱阵列

更衣室设计
与一般买手店不同,更衣间成为了本项目的主要销售空间。为了保证更衣室的私密性,让客人可以安心地在里面更衣、选购、聊天甚至小憩,设计将更衣室的衣柜设计为简易而足够隐蔽雅观的“传送门”,衣柜一面通向更衣室,另一面通向仓库,中间由布帘隔开,拉开“幕布”(屏风式木门),各式装束轮番登场,无形中,在店员和顾客之间勾勒出一种戏剧化的关联,为双方所扮演的传统“买卖”角色加描了一层浪漫色彩。
▽更衣室

▽更衣室的私密性

▽卫生间

▽走廊

▽夜景


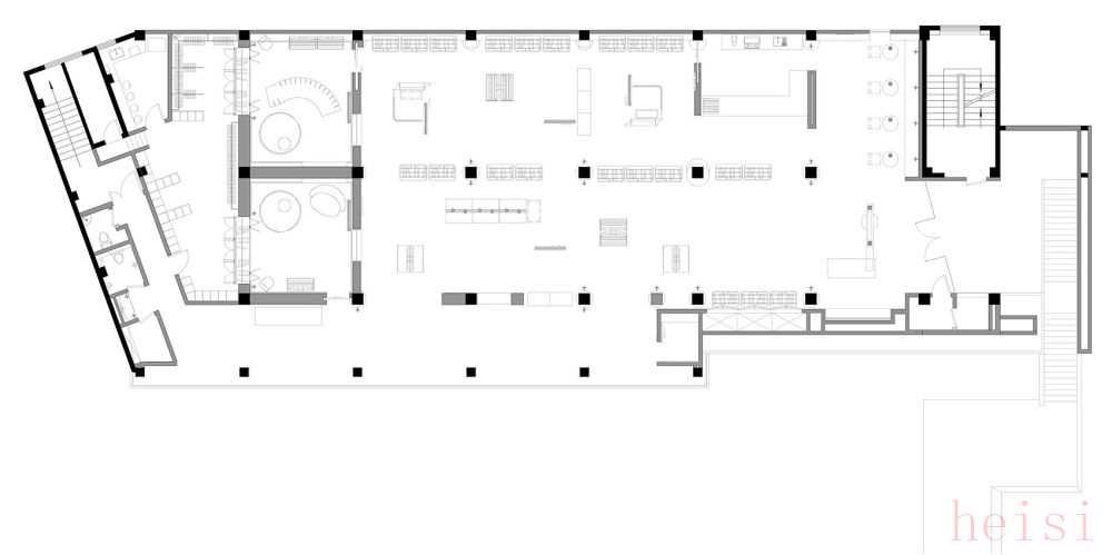
▽平面图



















项目名称:XIY品牌集合店
设计单位:F.O.G.建筑事务所
项目位置:重庆
建筑面积:560m2
设计团队:吴雷蕾 张驰 邹德静 唐墨 张馨月 李诗楠
结构顾问:蔡昕瑀
灯光顾问:立本社 张旭
施工图深化:邦舍深化设计
施工总包:有龙金胜
摄影:言隅
撰稿: 曹筱袤